Vinnureglur um Z-laga lyftu

Z-laga hásinguna er hægt að nota mikið í ýmsum aðstæðum sem krefjast varúðar meðhöndlunar. Z-laga fóðrun, C-laga fóðrun, Z-C blönduð fóðrun og fjöl-fóðrun, fjöl-afhleðsla og önnur tækifæri. Sem stendur er það aðallega notað fyrir fóðrun vigtunar- og pökkunarvéla, fóðrun og endur-fóðrun litaflokkara, þrívíddar hleðslu og affermingu sjálfvirkra framleiðslulína í-flæði og fjöl-punktafóðrun sjálfvirkra vigtunar- og skömmtunarkerfa. Lyfta af Z-gerð starfar sem stendur venjulega í eftirfarandi sjálfvirkum framleiðsluiðnaði: gæludýrafóðuriðnaði, uppblásinn matvælaiðnaður, fóðuriðnaður, sælgætisiðnaður, þurrkaðir og ferskir ávextir, snyrtivöruiðnaður, heilsufæðisiðnaður, kornvinnsluiðnaður, málmvinnsluiðnaður, efna- og lyfjaiðnaður, vélbúnaðar- og rafefnaiðnaður, hernaðariðnaður og svo framvegis. Lyftihæð allt að 40m.
Hver er munurinn á milliZ-laga lyftuog annar flutningsbúnaður?
Alhliða færibönd innihalda beltafæribönd, skrúfufæri osfrv., sem venjulega eru láréttar. Z-laga lyftibúnaður er mikið notaður línulegur flutningsbúnaður. Aftur á móti getur Z-laga lyftan flutt efni í beinni línu, stytt flutningslínu lyftihæðarinnar, gert kerfið þétt og Z-laga lyftan hefur góða þéttingu. Vinna inni í húsinu hefur betri þéttingarvirkni, sem getur dregið úr umhverfismengun.
Eiginleikar
1. Það samþættir lárétta flutning og lyftingu efna. Ein vél getur komið í stað þriggja hefðbundinna lárétta flutnings + lyfta + lárétta flutningsbúnaðar.
2. Hlíf þessarar vélar tekur upp sundraða samsetningu og lárétt lengd og lyftihæð eru valfrjáls.
3. Sveigjanlegt skipulag og lítið fótspor;
4. Sparaðu pláss á verkstæði og minnkaðu dýpt holunnar;
5. Vélin gengur eðlilega og áreiðanlega, mjúklega án hávaða, án þess að hella niður efni, án efnisleka, án fljúgandi ryks, auðvelt að taka í sundur og auðvelt að gera við, það er tilvalinn nýr efnisflutningsbúnaður.
Tæknileg færibreyta
|
Fyrirmynd |
HYZD-2L |
HYZD-3L |
HYZD-5L |
HYZD-7L |
HYZD-10L |
HYZD-20L |
|
Rúmtak/Fötu |
2.0L |
3.0L |
5.0L |
7.0L |
10.0L |
20.0L |
|
Hámarksafköst |
6m³/h |
8m³/h |
12m³/h |
15m³/h |
17m³/h |
30m³/h |
|
Hraði |
9-11m/mín |
|||||
|
Lyftihæð |
Sérsniðin |
|||||
|
Kraftur |
0,55-11kw |
|||||
Athugið:
1. Rúmmál fötu í töflunni er reiknað rúmmál fötu og flutningsrúmmál er reiknað í samræmi við fyllingarstuðulinn 0,6.
2. Hopper: matvælaflokkur ABS Hopper / Ryðfrítt stál Hopper / Kolefni stál Hopper
Uppbyggingin
Z-röð lyftibúnaður er samsettur af hlaupandi hlutum, akstursbúnaði (hægur snúningsbúnaður), efri tæki, miðjuhlíf og neðri tæki.
Hlaupandi hlutar ---- samanstanda af keðju og keðju með ermum.
Aksturstæki - notar mótor í Y-röð, afstýribúnaði og keðjudrifsrennsli o.s.frv. (notandi rafstýringarrofa-skilgreindur).
Hægt-tæki-sem notar gírmótor, tengt skerðingartæki og keðjudrifsminnkunarbúnaði í gegnum kúplingu, sem venjulega er notað við viðhald á búnaði, þetta tæki er tæki sem notandi getur-valið.
Z-laga lyftidrifstækinu er skipt í tvær gerðir: vinstri-fest og hægri-fest:
Uppsetning vinstra-hliðar: Snúið að fóðrunartenginu, kraftur drifeiningarinnar er vinstra megin á hlífinni.
Hægri-festur: Snúið að fóðrunartenginu er kraftur drifeiningarinnar hægra megin á hlífinni.
Efra tæki - búið efra keðjuhjóli, aðalskafti og útblástursporti.
Miðhluti - Miðhluti inniheldur: fyrsta hluta miðhluta, venjulega miðhluta, miðhluta með skoðunarhurð og ó-venjulegi miðhluti.
Neðri tæki - sett upp með neðra keðjuhjóli, skottskafti og spennubúnaði osfrv. (efnishæðarrofi, notandi hraðarofa-skilgreindur).
Byggingareiginleikar
Hopper:Til að mæta þörfum viðskiptavina eru ýmis efni eins og nylon, ABS, PP, ryðfríu stáli 304, ryðfríu stáli 316L, ryðfríu stáli 310, kolefnisstáli osfrv.
Keðja:Með því að nota innlenda fræga vörumerkjakeðju notar vélræna færibandskeðjan okkar með snúningsfötu færiböndum stóra sjálf-smyrjandi keðju fyrir rúllufæribönd. Þess vegna minnkar núningstap keðjunnar í notkun, endingartími keðjunnar lengist og viðhalds- og skiptikostnaður minnkar.
Undirvagn:Öll vélin getur verið gerð úr kolefnisstáli köldu rafstöðueiginleika úða eða ryðfríu stáli uppbyggingu
Tegund flutnings:Snúningsfötu færibandið flytur efni í lokuðum líkama og flytur efni í gegnum hylki sem er upphengdur á keðju. Einingahönnunin getur gert sér grein fyrir margs konar stillingum og hægt er að sameina hana lárétt, lóðrétt og lárétt. Z-gerð, C-gerð, E-gerð, L-gerð, R-gerð getur líka verið marg-fóðrun, fjöl-afhleðsla, öll vélin er að fullu lokuð, engin mengun, enginn leki, snyrtilegur og hreinn og sveigjanlegur samsetning, hægt að nota lóðrétta og lárétta flutninga inni í litlu rými. vélar sem auðvelt er að setja upp og breyta.
Tegundir og losunarefni
Þetta tæki er hægt að nota í fjölbreyttu umhverfi sem krefst varúðar meðhöndlunar. Z-fóðrun, C-gerð fóðrun, Z-C blönduð fóðrun og fjöl-fóðrun, fjöl-afhleðsla og önnur tækifæri. Sem stendur er það aðallega notað fyrir fóðrun vigtunar- og pökkunarvéla, fóðrun og endur-val á litaflokkunarvélum, þrívíddar hleðslu og affermingu sjálfvirkra framleiðslulína í hringrás og affermingu og fjöl-fóðrun sjálfvirkra vigtunar- og lotukerfa.

Þegar lyfta af Z-gerð er með margar losunargáttir, hvernig gerir lyftan af Z-gerð sér grein fyrir losuninni?
Byggt á þörfum viðskiptavina, bjóðum við viðskiptavinum upp á þrjár affermingaraðferðir sem viðskiptavinir geta valið um:
Handvirk afferming, pneumatic losun, raflosun.
Tilkynning viðskiptavinar
Ef þú vilt fá upplýsingar, myndband og vöruverð á Z-laga lyftu, vinsamlegast gefðu okkur eftirfarandi upplýsingar: upplýsingar um stærð; vinnsla hráefna (efni): heiti □ eðlisþyngd □ rakainnihald □ hitastig □; aðstæður á staðnum; sérstakar kröfur
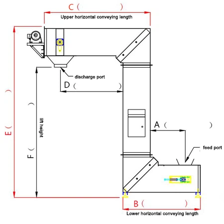
Vinsamlegast gefðu upp lengd A, D og F á myndinni hér að neðan, eða lengd B, C og E

Hvaða atvinnugreinar eða efni eruZ-laga lyftu sem hentar?
Lyfta af Z-gerð er hentug fyrir lárétta-lóðrétta-lárétta flutninga á lausu efni, aðallega með flutningi á ó-seigfljótandi efnum eins og kyrni og dufti. Fjölbreytt úrval af notkunariðnaði, aðallega: eldföst iðnaður, plastiðnaður, virkjaður kolefnisiðnaður, efnamálmvinnsluiðnaður, byggingarefni og umhverfisverndariðnaður, áburðariðnaður, námuvinnsla sem ekki er-málm o.s.frv.
Lyftuefni
Matvælaiðnaður: kex, gúmmí, marshmallows, litlar gufusoðnar bollur, pönnukökur, kjúklingakjarni, kartöfluflögur, hrísgrjónanúðlur, dumplings, jarðhnetur, melónufræ, pistasíuhnetur, hrísgrjón osfrv.
Efnaiðnaður: plastkorn, virkt kolefni, rotvarnarefni, aukefni, áburður osfrv.
Lyfjaiðnaður: hylki, töflur, pillur osfrv.
Vélbúnaðariðnaður: skrúfur, rær, málmfestingar osfrv.

Algeng vandamál
1. Hopper beltið rennur.
Stilltu handhjól landlínunnar og hertu beltið.
2. Legan er rykug og illa smurð.
Hreinsaðu legurnar og bættu við nýrri fitu.
3. Gírbeltið sleppur eða dettur af, eða gírbúnaðurinn bilar.
Spenntu drifbeltið til að koma í veg fyrir bilun flutningsbúnaðarins.
4. Hopper skrúfan er laus eða dettur af, og Hopper hreyfist eða fellur af. Stöðvaðu til að skoða, hertu skrúfurnar á tunnuna og stilltu stöðu hylkisins.
Varúðarráðstafanir fyrir Z-laga lyftu
Varúðarráðstafanir
1. Kyrnu Z-laga lyftunni er stjórnað af sérstökum aðila og aflrofinn er reglulega skoðaður.
2. Til þess að bæta notkunaröryggi þarf lyftingin að setja upp hásingartakmarkara og ferðatakmarkara. Láttu trissuna lyftast í fjarlægð frá keflinu.
3. 300mm getur látið lyftuna stöðvast sjálfkrafa og getur einnig framkvæmt prufulyftingu.
4. Lyftan ætti að vera með hleðslumerki og þyngdin ætti ekki að vera ofhlaðin þegar hún er lyft og lækkuð.
5. Eftir að lyftingin byrjar að senda rafmagn skal athuga vinnuskilyrði hásingartakmarkara, ferðatakmarkara og læsisrofa til að sjá hvort þau séu eðlileg.
6. Fyrir lyftingu eða lendingu er aðeins hægt að aka bílnum eftir að bjallan hringir.
7. Iðnaðarkögglafóðrunarfæribandið má ekki flytja fólk upp og niður.
8. Eftir að verkinu er lokið ætti hangandi plata Z-laga lyftunnar að falla til jarðar, slökkva síðan á aflgjafanum og loka efri og neðri verndarhurðunum.
9. Haltu alltaf hreinlætislegu umhverfi Z-laga ögnarinnar.
Smurefni, hringrás og aðferð fyrir fötulyftu
|
Heiti smurhluta |
Smurefni |
Smurhringur |
Smuraðferð |
|
Bearing |
Vatnsheld feiti |
200 klukkustundir |
með smurolíu |
|
Bakstopp |
Vatnsheld feiti |
50 klukkustundir |
með smurolíu |
|
Spennubolti |
Vatnsheld feiti |
500 klukkustundir |
smyrja |
|
Hraðaminni |
Samkvæmt forskrift útbúna minnkunarbúnaðarins |
6 mánuðir |
hella |
|
Rafmótor |
Vatnsheld feiti |
6 mánuðir |
hella |
Ábyrgðir okkar og þjónusta
Forsöluþjónusta:{{0}
- Leiðbeindu viðskiptavinum að velja viðeigandi búnaðargerð.
- Sendu verkfræðinga og tæknimenn á framleiðslustaðinn í tíma til að skipuleggja síðuna fyrir viðskiptavini, hanna sanngjarna ferla og lausnir.
- Við getum hannað og framleitt vörur í samræmi við sérstakar þarfir viðskiptavina til að mæta mismunandi þörfum fjárfesta
Þjónusta í sölu:
- Strangt eftirlit með vörum áður en farið er frá verksmiðjunni
- Sendir samkvæmt samningi
Þjónusta eftir-sölu:
- Aðalábyrgðartími búnaðarins sem fyrirtækið okkar selur er eitt ár (að undanskildum bilun eða skemmdum af völdum mannlegra þátta, eldsneytisþátta eða ómótstæðilegra náttúrufyrirbæra, og viðkvæmir hlutar falla ekki undir ábyrgðina: eldsneytissprautur, dæluhausar, ljósnæm augu osfrv.).
- Ef bilun í búnaði stafar af mannlegum þáttum verður kostnaðurinn gjaldfærður í samræmi við verksmiðjuverð.
- Eftir að hafa fengið ábyrgðartilkynninguna skaltu svara innan 2 klukkustunda. 24 klukkustunda með tæknilegum leiðbeiningum til að leysa vandamál.
Um Odifei Company

Zhengzhou Odifei Machinery Equipment Co., Ltd. hefur einbeitt sér að flutningsbúnaði í 17 ár. Aðalstarfsemi þess er: spíral titringur lóðrétt lyfta, rimlamatari, keðjuplötufæri, rimlafæriband, sköfufæriband, stórt hornbeltafæriband, skrúfafærifæri, keðjufötufæriband, TD beltisfötulyfta, TH hringkeðjufötulyfta, 5 TD{4 TD{4} beltafæriband (eða beltifæri), hreyfanlegt færiband, beltafæri með stórum hallahorns rifjum; skrúfa færibönd, skaftlaus skrúfa færibönd; létt, meðalstórt og þungt keðjuplötufæriband; keðjufötu færibandavél, SCD trog klinker færiband; láréttur tvöfaldur skaft blöndunartæki; léttur, miðlungs og þungur plötumatari; GZG mótor titringsfóðrari; trommuskjár, skaftlaus trommuskjár;
Árið 2010 fór R&D teymi fyrirtækisins okkar inn í auðlindaendurvinnsluiðnaðinn og þróaði í kjölfarið hreistraða flutningsbúnað fyrir heimilisúrgang, skimun og flokkun á skaftlausum trommuskjáum, rimlamatara fyrir byggingarúrgang og hreistruð ruslfæribönd fyrir rafbogaofn, sem skapa ekki aðeins keðju.
Zhengzhou Odifei Machinery Equipment Co., Ltd. hefur stöðugt framkvæmt tækninýjungar í anda afburða og hefur þróað nokkrar hagnýtar nýjar vörur. Varan er háþróuð í hönnun, fín í framleiðslu, áreiðanleg í frammistöðu, hefur alþjóðlegt háþróað stig, selst vel heima og erlendis og stefnir að því að vera leiðandi í iðnaði!

Algengar spurningar
Sp.: Fötulyftur eru samsettar úr nokkrum íhlutum
A: Hopper: festur á borði (eða togkeðju), það eru þrjár tegundir
Djúp fötu - sem hentar fyrir laus efni;
Grunnar fötu - efni með mikilli seigju;
Þríhyrningsfötu - þung og kekkjuleg efni
Skel: Innbyggður-gírskipting og tappi.
Yfirbygging: Þunn stálplata er soðin í ferhyrndan skel og frávik við uppsetninguna.
Neðst: Settu upp spennubúnað.
Sp.: Það eru nokkrar gerðir af fötulyftum
A: 1. Samkvæmt útlitsforminu: það má skipta í lóðrétta gerð og hallandi gerð
2. Samkvæmt mismunandi losunaraðferðum: það má skipta í miðflótta, þyngdarafl og blending.
3. Samkvæmt mismunandi hleðsluaðferðum: það má skipta í uppgröftargerð og innspýtingargerð.
4. Samkvæmt uppbyggingu hoppersins: það má skipta í grunna fötu, djúpa fötu og þríhyrningslaga fötu.
5. Samkvæmt mismunandi toghlutum: það má skipta í borði og stálkeðju.
Sp.: Hver er vinnureglan um fötu lyftu
A: Flutningsreglan í fötulyftunni er sem hér segir: Hopperinn dregur upp efnið úr geymslunni fyrir neðan, lyftir því upp á toppinn með færibandinu eða keðjunni, snýr niður eftir að hafa farið framhjá efsta hjólinu og fötulyftan hellir efninu í viðtekið í raufinni. Drifbelti beltis-drifna fötulyftunnar tekur almennt upp gúmmíbelti, sem er sett á neðri eða efri driftrommu og efri og neðri tilvísunartromlur. Keðju-knúna fötulyftan er almennt búin tveimur samhliða gírkeðjum, með par af gírkeðjum efst eða neðst, og par af tilvísunarhjólum neðst eða efst. Fötulyftur eru almennt búnar hlífum til að koma í veg fyrir að ryk fljúgi í fötulyftunum.
Sp.: Hverjir eru kostir og gallar fötu lyfta?
A: Kostir:
1. Uppbyggingin er einföld, hliðarstærðin er lítil og gólfplássið er lítið.
2. Lyftihæðin er stór, flutningsgetan er góð, líkaminn er að fullu lokaður og umhverfismengunin er lítil.
3. Lítil orkunotkun.
Galli:
1. Auðvelt er að loka þegar það er of mikið og auðvelt er að klæðast tankinum.
2. Það er aðeins hentugur til að flytja duft, kornóttan og lítinn og meðalstóran -magn farm, eins og korn, kol, sand o.s.frv.
3. Ekki er hægt að flytja vörurnar í lárétta átt.
Sp.: Ertu verksmiðja eða viðskiptafyrirtæki? Við byggingu aZ-laga lyftu, Hvaða önnur efni eru fötulyftur hentugur fyrir?
A: Við erum verksmiðja, stofnuð árið 2007, sem sérhæfir sig í framleiðslu á lóðréttum titringslyftum, lóðréttum titringslyftum, fötulyftum, beltafæriböndum, mælikvarða færiböndum, skrúfa færiböndum osfrv. Fötulyftu er hægt að nota í efnaiðnaði, keramikiðnaði, matvælaiðnaði, málmvinnsluiðnaði osfrv.
Sp.: Hvað með varahluti?
A: Við útvegum alltaf varahluti á kostnaðarverði og gefum þér lista yfir varahluti þegar þú kaupir vélina.
Sp.: Ætlarðu að prófaZ-laga lyftufyrir afhendingu?
A: Já, við munum prófa hverja vél og framleiðslulínu fyrir afhendingu og senda vinnumyndbandið til þín. Þú getur líka athugað með okkur fyrir afhendingu.

Innkaupaferli

Z-laga lyftu (C-lyfta) Notendur geta valið stillingar:
Undirvagn: Ryðfrítt stál undirvagn/kolefnisstál úða undirvagn
Hopper: matvælaflokkur ABS tankur / ryðfríu stáli tankur / kolefni stál Hopper
Keðja: keðja úr stálblendi/ryðfríu stáli
Sprocket: Alloy Steel Sprocket / Ryðfrítt stál tannhjól
Drif: venjulegur mótor/sprengiþolinn-mótor/hreyfill með breytilegri tíðni
Stjórnun: Handvirkt / sjálfvirkt (hægt að aðlaga í samræmi við kröfur viðskiptavina)
Z-laga lyftibúnaður er ný tegund af efnisflutningsbúnaði sem hefur verið þróaður með góðum árangri með því að samþætta háþróaða tækni í greininni. Frá því að lyftibúnaðurinn af Z-gerð var settur á markað getur hún fljótt lagað sig að þörfum framleiðslunnar og mörg sett af vörum hafa verið notuð með góðum árangri í umhverfisverkfræðivélum, málmvinnslu, efnaiðnaði, áburði og öðrum iðnaði.
Hvernig á að fá tilboð?
Vegna þess að hásingin af Z-gerð er vélræn vara hefur hún ákveðna fagmennsku, svo það er nauðsynlegt að vitna áður en tilvitnun er gerð.
Til að hafa samskipti við viðskiptavini eftirfarandi upplýsingar:
1. Hvaða efni er viðskiptavinurinn að flytja?
2. Hvert er magn eðlisþyngdar efnisins?
3. Hver er efri lárétta fjarlægðin og neðri lárétta fjarlægðin? Hver er flutningshæðin?
4. Hvað er nauðsynlegt afhendingarmagn á klukkustund?
5. Annað, svo sem: rakainnihald efnis, búnaðarefni o.fl.
Vinsamlegast gefðu upp lengd A, D og F á myndinni hér að neðan, eða lengd B, C og E

Ef þú hefur áhuga á Z-laga lyftu skaltu ekki hika við að hafa samband við okkur eftir 24 klukkustundir!
Verið velkomin að heimsækja verksmiðjuna okkar !!!
maq per Qat: z-laga hásingar, Kína z-laga hásingar framleiðendur, birgjar, verksmiðja











